Не упусти свой шанс! Последние акции от застройщиков  ▼
Объявление снято с показа Смотреть похожие объекты

Продается 1-комнатная квартира, Молодежная ул., 74

0 Р

Химки г. (Химки гор. округ)

Молодежная ул.74

Дата публикации: 19 августа 2024

Дата обновления: 3 ноября 2024

 

Этаж: 12 / 22

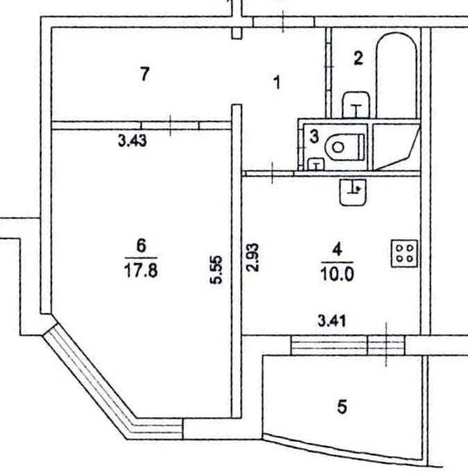
Общая: 42 м2

Жилая: 18 м2

Кухня: 10 м2

Комнаты: 17,8 м2

Балкон/лоджия: лоджия

Лифт: лифт пассажирский и лифт грузовой

Окна: окна во двор

Санузел: раздельный

Мусоропровод: нет

Состояние квартиры: среднее состояние

Тип дома: панельный

Год постройки: 2008

Территория: не огорожена

Парковка: есть

Статус сделки: продажа

Сделка: прямая продажа

Собственность: Более 9 лет

Основание права собственности: дарение

Описание

Отличная полезная площадь - 47,4 кв.м. с учетом лоджии (общая площадь жилого помещения 41,8 кв.м.), с косметическим ремонтом на 12-м этаже (в доме 22 этажа). Дом серии КОПЭ-М-Парус сдан в 2008 году, потолки 2,66 м. Важное преимущество данной квартиры - все окна во двор!

Свободная продажа, один совершеннолетний собственник с 2016 года. Все документы готовы (техпаспорт, кадастровый паспорт, выписка ЕГРН). В квартире никто не зарегистрирован и не проживает. Квартира без обременений и долгов, возможна сделка по ипотеке.

Жилая площадь (комната) 17,8 кв.м, площадь подсобных помещений 24 кв.м., в том числе: кухня (квадратная в плане) 10 кв.м., раздельный санузел (ванная 3,0 кв.м., туалет 1,3 кв.м.), коридор-прихожая 4,0 кв.м., коридор-гардеробная 5,7 кв.м. Плюс большая застекленная лоджия с выходом из кухни 5,6 кв.м.

Хорошая стальная дверь, кабельное ТВ, интернет, счетчики холодной и горячей воды.
Установлены новые хорошие батареи!

В доме 2 пассажирских и грузовой лифты.

Очень выгодное месторасположение квартиры - тихо, но близко от остановок общественного транспорта и всей необходимой инфраструктуры - в шаговой доступности (3 мин пешком) гипермаркет ТЦ МЕГА-Химки, конечная остановка автобусов и маршруток до м.Планерная и м.Ховрино (м. Речной Вокзал) (15-30 минут транспортом), ст. Молжаниново МЦД-3 (6 минут транспортом), круглосуточная автостоянка у МЕГА-Химки.

Рядом фитнес-клуб и природный парк долины реки Сходня в Куркино (5 минут пешком).

Во дворе новая современная детская и спортивная площадка, ясли и детский сад, до школы 5 мин пешком.

До МКАД 5 км, выезд по Ленинградскому и Новокуркинскому шоссе.

В 2025 году в пешей доступности (12 минут) будет построена у ТЦ МЕГА на МЦД-3 станция Химки-2 (финансирование выделено Московской областью, в 2024 году производится проектирование станции).

Просмотр каждый вечер в будни после 19-ти часов, в выходные по договоренности. Также покажу квартиру онлайн.

Готов ответить на Ваши вопросы, пишите, звоните и приходите!

Квартира на карте

ПанорамыКарта

Похожие объявления

Этаж: 12  Площадь: 42 м2

9 990 000 Р

Этаж: 1  Площадь: 42,2 м2

7 300 000 Р
Спецпредложения
Добавить объявление